Anna T. Jordan - Park Improvements
New Features in Current Project Improvements:
- New Modern Playground with Shade
- Improved pedestrian access throughout the site
- New gathering spaces
Project Updates
- 2020 - Project delayed due to COVID-19
- November 2021 - Project in design. Topo survey has been completed
- November 2023 - Design consultant contracted
- December 2023 - Consultant designing master plan
- February 2024 - Public engagement begins with stakeholder meetings;
- March 2024 - 3/12/24 Stakeholder meeting held; public meeting set for 4/9/24
- April 2024 - Public meeting held; public input through online survey through the end of April
- May 2024 - Developing a preferred master plan
- June 2024 - Schematic Design
- April 2025 - Design Development
Estimated Completion for Current Improvements: TBD
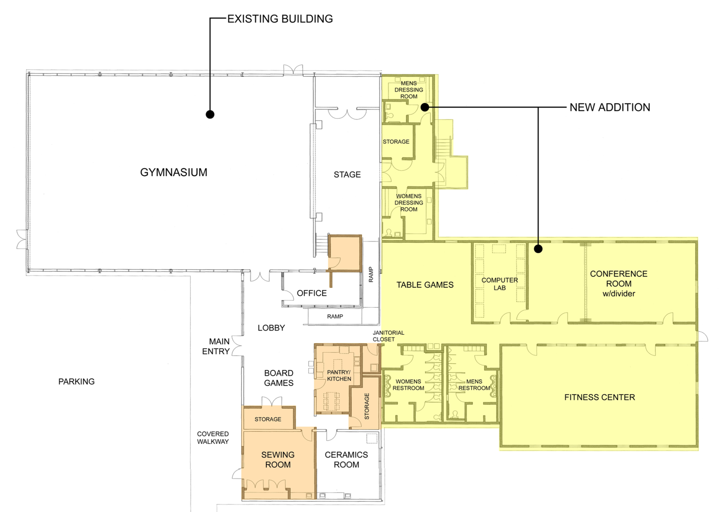
Previous Improvements
Features
- new play area
- new fitness center
- new conference room
- new computer lab
- new restrooms
- new dressing from for gym stage
- new storage space
- resurfaced gym floor
Completed January 2017 (Click to view project timeline)
Project Updates:
- FEBRUARY 2013 - Public meeting held; community surveys issued about aquatics
- MARCH 2013 - Public meeting held; community surveys issued about aquatics
- DECEMBER 2013 - Bid issued for pool renovation
- JUNE 2015 - Bid issued for recreation center renovations
- JULY 2015 - Re-bid issued for recreation center renovations
- DECEMBER 2016 - Final phases of construction completed
- JANUARY 2017 - Grand opening held January 28
